| Obecné informace: | |
|---|---|
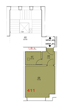
| Umístění: | čtvrté podlaží |
| Velikost: | 24.2 m2 |
| Technické parametry: | |
|---|---|
| typ: | byt |
| umístění: | 3. NP |
| výška stropu: | 3,0 m |
| typ podlahy: | parkety/dlažba/PVC |
| vytápění: | plynové - vlastní kotel |
| vlastní měřiče: | ano |
Bytová jednotka 411
Pronajato
Tento prostor je bohužel obsazen, zašlete nám kontakt na Vás a třeba najdeme něco podobného.
Fotogalerie
Kontaktní formulář













